Dumitrescu Adrian utilizează fişiere de tip cookie pentru a personaliza și îmbunătăți experiența ta pe Website-ul nostru. Înainte de a continua navigarea pe Website-ul nostru te rugăm să aloci timpul necesar pentru a citi și înțelege conținutul Politicii de Cookie. Prin continuarea navigării pe Website-ul nostru confirmi acceptarea utilizării fişierelor de tip cookie conform Politicii de Cookie.
TOP Exclusivitate
ID: P205913

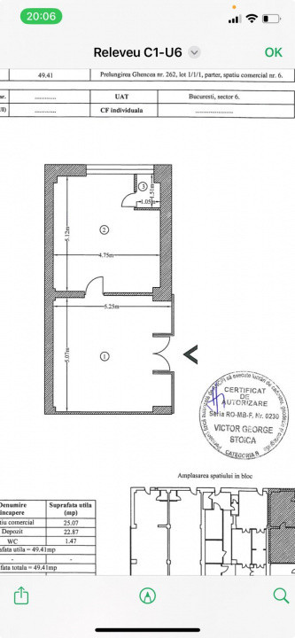
Spatiu comercial - Prelungiera Ghencea nr. 262 - 50 mp

Bucuresti, Prelungirea Ghencea

Numar afisari: 1
50 m2
2 Camere
1 Baie
650€

Inchiriere spatiu comercial pe Prelungirea Ghencea 262 ,in suprafata de 50 mp,cu o vitrina de 5 ml .Pretabil pt orice tip de activitate!
Dispune de un grup sanitar privat,vestiar ,curent 220v si 380v, centrala proprie ( pe gaz ), toate utilitatilie .
Are un deosebit vad comercial, trafic pietonal cat si auto, in tot timpul zilei.
Agentii imobiliari sunt asteptati sa vina la colaborare in conditii reciproc avantajoase!
Pentru o prezentare nebranduita, va rog sa ma contactati in prealabil. Pretabil pentru magazin,cabinet medical,etc
Disponibilitate imediata!
Avans: 1 luna avans + 1 luna garantie.
Pentru mai multe detalii și programarea unei vizionări, vă stau la dispoziție.

  • Nr. camere:2
  • S. utila:50.00 mp
  • S. construita:60.00 mp
  • S. vitrina:5.00 m
  • Front stradal:10.00 m
  • Comp.:Open space
  • Nr. bai:1
  • Nr. parcari:1
  • An constructie:2017
  • Structura rezistenta:Beton
  • Tip imobil:Bloc
  • Regim inaltime:P+4
  • Avans:750
  • Garantie:750
Utilitati
  • Utilitati generale: Curent, Apa, Canalizare, Gaz, Curent trifazic, Acces internet
  • Sistem incalzire: Centrala proprie
  • Climatizare: Aer conditionat
Finisaje
  • Izolatii exterior: Exterior
  • Pereti: Vopsea lavabila, Faianta
  • Podele: Gresie
  • Ferestre: PVC
  • Iluminat: Lampi
Dotari
  • Contorizare: Apometre, Contor gaz
  • Mobilat: Partial

Adrian Dumitrescu

REALTOR
0724518100
Vezi telefon Chat