Dumitrescu Adrian utilizează fişiere de tip cookie pentru a personaliza și îmbunătăți experiența ta pe Website-ul nostru. Înainte de a continua navigarea pe Website-ul nostru te rugăm să aloci timpul necesar pentru a citi și înțelege conținutul Politicii de Cookie. Prin continuarea navigării pe Website-ul nostru confirmi acceptarea utilizării fişierelor de tip cookie conform Politicii de Cookie.
ID: FX69290

Vanzare casa / vila 4 camere Grand Arena - Strada Odei nr.174, casa individuala

Bucuresti, Berceni

Numar afisari: 110
113 m2
444 m2
4 Camere
2 Bai
269.000€

Vanzare casa individuala cu 4 camere, 2 bai, 1 terasa, 3 balcoane, terasa 20mp, spatiu parcare pentru 1 masina in curte si teren 444mp in proprietate.

Adresa exacta: Strada Odei nr.174 – Berceni – Grand Arena – Metalurgiei - Sector 4

!!! PRETUL de vanzare a fost stabilit tinand cond de starea casei la interior si exterior, necesita lucrari de reparatii si renovare.

DETALII PROPRIETATE:
Casa 4 camere, inaltime 2,75
Necesita renovare
Tamplarie PVC cu geam termopan
Regim inaltime: P + 1E
An constructie: 2012
Suprafata teren = 444mp
Teren de colt
Deschidere pe 2 laturi: 18,88m si 23,50m
Raportul laturilor = 0,8, excelent pentru rezidential
Suprafata utila: 113mp
Suprafata construita (amprenta la sol): 91mp
Suprafata desfasurata: 189mp
Nr.bai: 2 (baie cu dus la parter, baie cu cada la etaj)
Sistem incalzire: centrala termica proprie, calorifere otel, tevi cupru
Strcutura constructiei: fundatie din beton armat, cadre si plansee din beton, zidarie din caramida tip Porotherm 30cm, izolatie termica 10cm, fundatie 90cm
Utilitati: gaze, curent, canalizare, apa, put forat

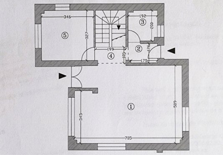
Suprafete conform releveu:

PARTER
Living = 35,8mp
Bucatarie = 11,28mp
Baie = 3,75mp
Hol = 2,06mp
Hol = 2,39mp
Suprafata utila = 55,28mp
Suprafata construita = 91mp

ETAJ
Dormitor 1 = 14,40mp
Dormiotr 2 = 11,55mp
Dormitor 3 = 11,42mp
Baie = 6,34mp
Hol = 14,09mp
Balcon 1 = 5,72mp
Balcon 2 = 3,28mp
Balcon 3 = 3,24mp
Suprafata utila = 57,80mp
Suprafata totala = 70,04mp

Pretul de vanzare a fost stabilit tinand cont de starea casei la interior si exterior.

  • Nr. camere:4
  • S. utila:113.00 mp
  • S. construita:181.00 mp
  • S. teren:444.00 mp
  • Nr. bucatarii:1
  • Nr. bai:2
  • Nr. balcoane:3
  • Nr. parcari:1
  • Front stradal:42.00 m
  • Nr. fronturi:2
  • An constructie:2012
  • Structura rezistenta:Beton
  • Regim inaltime:P+1
Utilitati
  • Utilitati generale: Curent, Apa, Canalizare, Gaz, Put, Acces internet
  • Sistem incalzire: Centrala proprie
Finisaje
  • Stare: Necesita renovare
  • Ferestre: PVC
  • Rulouri: PVC
  • Usa intrare: Metal
  • Usa interior: Panel
Dotari
  • Contorizare: Apometre, Contor gaz
  • Mobilat: Nemobilat

Adrian Dumitrescu

REALTOR
0724518100
Vezi telefon Chat